• LaArch
  • Projekty
    • architektura
    • ogrody lecznicze
    • konkursy
    • przestrzeń publiczna
    • ogrody prywatne
  • Studio
  • Blog
  • Oferta
  • Kontakt
LaArch
  • LaArch
  • Projekty
    • architektura
    • ogrody lecznicze
    • konkursy
    • przestrzeń publiczna
    • ogrody prywatne
  • Studio
  • Blog
  • Oferta
  • Kontakt
  • Email
  • Facebook
  • Instagram
© Copyright 2023  —  LAARCH

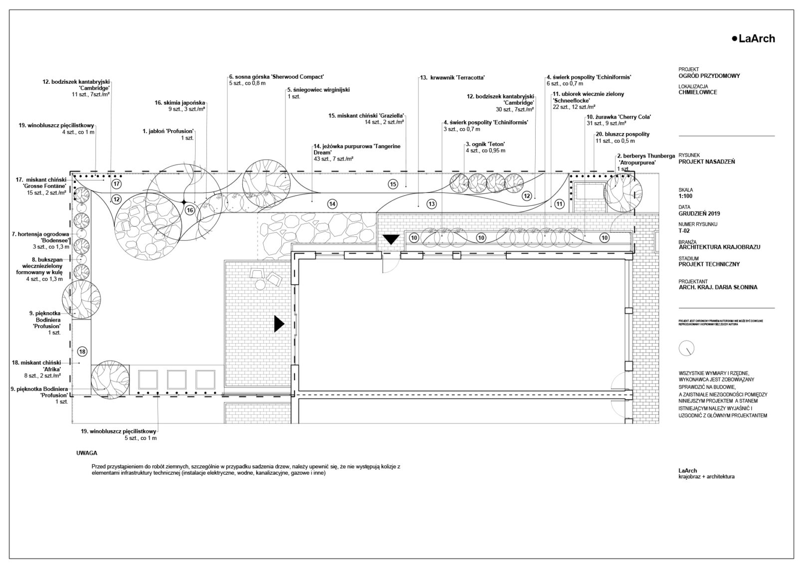
Ogród w Chmielowicach

Prywatna przystań na niewielkiej przestrzeni

Projekt ogrodu przydomowego stworzony z myślą o zapewnieniu prywatnego azylu. Przestrzeń dzieli się na strefę wejściową, strefę otwartą, wyspę do wypoczynku w cieniu drzewa oraz strefę użytkową – ogród warzywny w podniesionych grządkach i ścianę na zioła. Misa z wodą i odpowiednio dobrane nasadzenia zapraszają do ogrodu ptaki. 

Lokalizacja

  • Chmielowice

Inwestor

  • Prywatny

Projekt

  • 2019

Zakres

  • Architektura krajobrazu

Powierzchnia

  • 205 m²
Pozostałe projekty
Previous
Next
  • Email
  • Facebook
  • Instagram

© Copyright 2023  —  LAARCH

Zgoda na pliki cookie
Aby zapewnić najlepsze doświadczenia, używamy technologii takich jak pliki cookie do przechowywania i/lub uzyskiwania dostępu do informacji o urządzeniu. Wyrażenie zgody na te technologie umożliwi nam przetwarzanie danych, takich jak zachowanie podczas przeglądania lub unikalne identyfikatory na tej stronie. Brak zgody lub jej wycofanie może negatywnie wpłynąć na niektóre funkcje.
Funkcjonalne Zawsze aktywne
Techniczne przechowywanie lub dostęp jest ściśle niezbędny do uzasadnionego celu umożliwienia korzystania z konkretnej usługi wyraźnie żądanej przez abonenta lub użytkownika lub wyłącznie w celu przeprowadzenia transmisji komunikacji za pośrednictwem sieci łączności elektronicznej.
Preferencje
Przechowywanie lub dostęp techniczny jest niezbędny do uzasadnionego celu przechowywania preferencji, o które nie prosi subskrybent lub użytkownik.
Statystyki
Przechowywanie techniczne lub dostęp, który jest używany wyłącznie do celów statystycznych. Techniczne przechowywanie lub dostęp, który jest wykorzystywany wyłącznie do anonimowych celów statystycznych. Bez wezwania sądowego, dobrowolnej zgody dostawcy usług internetowych lub dodatkowych zapisów od strony trzeciej, informacje przechowywane lub pobierane wyłącznie w tym celu zwykle nie mogą być wykorzystane do identyfikacji użytkownika.
Marketing
Techniczne przechowywanie lub dostęp jest wymagany do tworzenia profili użytkowników w celu wysyłania reklam lub śledzenia użytkownika na stronie internetowej lub na kilku stronach internetowych w podobnych celach marketingowych.
Zarządzaj opcjami Zarządzaj serwisami Zarządzaj dostawcami Przeczytaj więcej o tych celach
Zobacz ustawienia
{title} {title} {title}