• LaArch
  • Projekty
    • architektura
    • ogrody lecznicze
    • konkursy
    • przestrzeń publiczna
    • ogrody prywatne
  • Studio
  • Blog
  • Oferta
  • Kontakt
LaArch
  • LaArch
  • Projekty
    • architektura
    • ogrody lecznicze
    • konkursy
    • przestrzeń publiczna
    • ogrody prywatne
  • Studio
  • Blog
  • Oferta
  • Kontakt
  • Email
  • Facebook
  • Instagram
© Copyright 2023  —  LAARCH

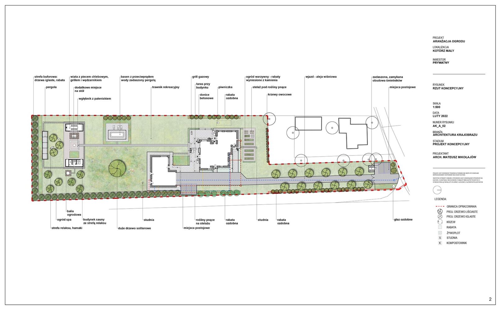
Ogród w Kotorzu

Piękna lokalizacja i bogactwo funkcji

Projekt nowoczesnego ogrodu przydomowego w pięknej, leśnej okolicy. Działka została podzielona funkcjonalnie na różne strefy, wśród których znalazły się: strefa wejściowa z aleją wiśni, strefa tarasów, piwniczka na wino, ogród warzywny z podniesionymi grządkami, strefa basenu, wgłębnik z miejscem na ognisko, wiata z grillem i strefa spa z sauną ogrodową.

Lokalizacja

  • Kotórz Mały

Inwestor

  • Prywatny

Projekt

  • 2022

Zakres

  • Architektura krajobrazu, architektura, aranżacja tarasów, projekt oświetlenia

Powierzchnia

  • 47 a
Pozostałe projekty
Previous
Next
  • Email
  • Facebook
  • Instagram

© Copyright 2023  —  LAARCH

Zgoda na pliki cookie
Aby zapewnić najlepsze doświadczenia, używamy technologii takich jak pliki cookie do przechowywania i/lub uzyskiwania dostępu do informacji o urządzeniu. Wyrażenie zgody na te technologie umożliwi nam przetwarzanie danych, takich jak zachowanie podczas przeglądania lub unikalne identyfikatory na tej stronie. Brak zgody lub jej wycofanie może negatywnie wpłynąć na niektóre funkcje.
Funkcjonalne Zawsze aktywne
Techniczne przechowywanie lub dostęp jest ściśle niezbędny do uzasadnionego celu umożliwienia korzystania z konkretnej usługi wyraźnie żądanej przez abonenta lub użytkownika lub wyłącznie w celu przeprowadzenia transmisji komunikacji za pośrednictwem sieci łączności elektronicznej.
Preferencje
Przechowywanie lub dostęp techniczny jest niezbędny do uzasadnionego celu przechowywania preferencji, o które nie prosi subskrybent lub użytkownik.
Statystyki
Przechowywanie techniczne lub dostęp, który jest używany wyłącznie do celów statystycznych. Techniczne przechowywanie lub dostęp, który jest wykorzystywany wyłącznie do anonimowych celów statystycznych. Bez wezwania sądowego, dobrowolnej zgody dostawcy usług internetowych lub dodatkowych zapisów od strony trzeciej, informacje przechowywane lub pobierane wyłącznie w tym celu zwykle nie mogą być wykorzystane do identyfikacji użytkownika.
Marketing
Techniczne przechowywanie lub dostęp jest wymagany do tworzenia profili użytkowników w celu wysyłania reklam lub śledzenia użytkownika na stronie internetowej lub na kilku stronach internetowych w podobnych celach marketingowych.
Zarządzaj opcjami Zarządzaj serwisami Zarządzaj dostawcami Przeczytaj więcej o tych celach
Zobacz ustawienia
{title} {title} {title}